Espacio Acorde

Reforma de vivienda en la calle General Pardiñas

Proyecto de interiorismo por especialista en viviendas exclusivas para General Pardiñas Madrid.
Mobiliario a medida en salón, con piezas de diseño y decoración exclusiva en proyecto General Pardiñas Barrio Salamanca.
Vista panorámica desde terraza de ático reformado en Barrio de Salamanca, Madrid.
Vestidor a medida con iluminación integrada y acabados de alta calidad en reforma de lujo Madrid
Detalle de rejilla de climatización invisible integrada en techo de piso antiguo reformado en Madrid.
Cocina abierta al salón con barra americana y diseño moderno en reforma de General Pardiñas.
Salón con diseño minimalista cálido, texturas naturales y mobiliario de líneas limpias en edificio histórico Madrid.
Ventana de madera restaurada con doble acristalamiento en fachada de edificio del Barrio de Salamanca.
Escena de iluminación nocturna en comedor de vivienda de lujo con control domótico en Madrid.
Equipo de profesionales trabajando en reforma integral llave en mano en propiedad de calle General Pardiñas.
Instalación de aislamiento acústico y térmico en pared de edificio clásico durante reforma en Madrid.
Espacio con interiorismo ecléctico, combinando piezas vintage y modernas en piso reformado Barrio de Salamanca.
Reforma con guiños Art Déco en vivienda de lujo Madrid. Proyecto de reforma de vivienda en General Pardiñas, Madrid.
Interiorismo que mezcla clasicismo y modernidad en General Pardiñas. Proyecto de reforma de vivienda en General Pardiñas, Madrid.
Diseño contemporáneo para pisos señoriales Madrid. Proyecto de reforma de vivienda en General Pardiñas, Madrid.
Empresas de reformas de lujo en Madrid Barrio de Salamanca. Proyecto de reforma de vivienda en General Pardiñas, Madrid.
Reforma de piso antiguo con estilo en Castellana Madrid. Proyecto de reforma de vivienda en General Pardiñas, Madrid.
Estudio de arquitectura para viviendas premium en Lista Madrid. Proyecto de reforma de vivienda en General Pardiñas, Madrid.
Proyecto de reforma integral en calle General Pardiñas. Proyecto de reforma de vivienda en General Pardiñas, Madrid.
Reformar piso con encanto en Barrio de Goya Madrid. Proyecto de reforma de vivienda en General Pardiñas, Madrid.
Diseño de apartamentos de lujo Madrid. Proyecto de reforma de vivienda en General Pardiñas, Madrid.
Rehabilitación de vivienda exclusiva en General Pardiñas. Proyecto de reforma de vivienda en General Pardiñas, Madrid.
Arquitecto para pisos señoriales en Madrid centro. Proyecto de reforma de vivienda en General Pardiñas, Madrid.
Interiorismo de alto standing Barrio de Salamanca. Proyecto de reforma de vivienda en General Pardiñas, Madrid.
Reforma integral de lujo en General Pardiñas Madrid. Proyecto de reforma de vivienda en General Pardiñas, Madrid.
Proyecto de interiorismo por especialista en viviendas exclusivas para General Pardiñas Madrid. Mobiliario a medida en salón, con piezas de diseño y decoración exclusiva en proyecto General Pardiñas Barrio Salamanca. Vista panorámica desde terraza de ático reformado en Barrio de Salamanca, Madrid. Vestidor a medida con iluminación integrada y acabados de alta calidad en reforma de lujo Madrid Detalle de rejilla de climatización invisible integrada en techo de piso antiguo reformado en Madrid. Cocina abierta al salón con barra americana y diseño moderno en reforma de General Pardiñas. Salón con diseño minimalista cálido, texturas naturales y mobiliario de líneas limpias en edificio histórico Madrid. Ventana de madera restaurada con doble acristalamiento en fachada de edificio del Barrio de Salamanca. Escena de iluminación nocturna en comedor de vivienda de lujo con control domótico en Madrid. Equipo de profesionales trabajando en reforma integral llave en mano en propiedad de calle General Pardiñas. Instalación de aislamiento acústico y térmico en pared de edificio clásico durante reforma en Madrid. Espacio con interiorismo ecléctico, combinando piezas vintage y modernas en piso reformado Barrio de Salamanca. Reforma con guiños Art Déco en vivienda de lujo Madrid. Proyecto de reforma de vivienda en General Pardiñas, Madrid. Interiorismo que mezcla clasicismo y modernidad en General Pardiñas. Proyecto de reforma de vivienda en General Pardiñas, Madrid. Diseño contemporáneo para pisos señoriales Madrid. Proyecto de reforma de vivienda en General Pardiñas, Madrid. Empresas de reformas de lujo en Madrid Barrio de Salamanca. Proyecto de reforma de vivienda en General Pardiñas, Madrid. Reforma de piso antiguo con estilo en Castellana Madrid. Proyecto de reforma de vivienda en General Pardiñas, Madrid. Estudio de arquitectura para viviendas premium en Lista Madrid. Proyecto de reforma de vivienda en General Pardiñas, Madrid. Proyecto de reforma integral en calle General Pardiñas. Proyecto de reforma de vivienda en General Pardiñas, Madrid. Reformar piso con encanto en Barrio de Goya Madrid. Proyecto de reforma de vivienda en General Pardiñas, Madrid. Diseño de apartamentos de lujo Madrid. Proyecto de reforma de vivienda en General Pardiñas, Madrid. Rehabilitación de vivienda exclusiva en General Pardiñas. Proyecto de reforma de vivienda en General Pardiñas, Madrid. Arquitecto para pisos señoriales en Madrid centro. Proyecto de reforma de vivienda en General Pardiñas, Madrid. Interiorismo de alto standing Barrio de Salamanca. Proyecto de reforma de vivienda en General Pardiñas, Madrid. Reforma integral de lujo en General Pardiñas Madrid. Proyecto de reforma de vivienda en General Pardiñas, Madrid.
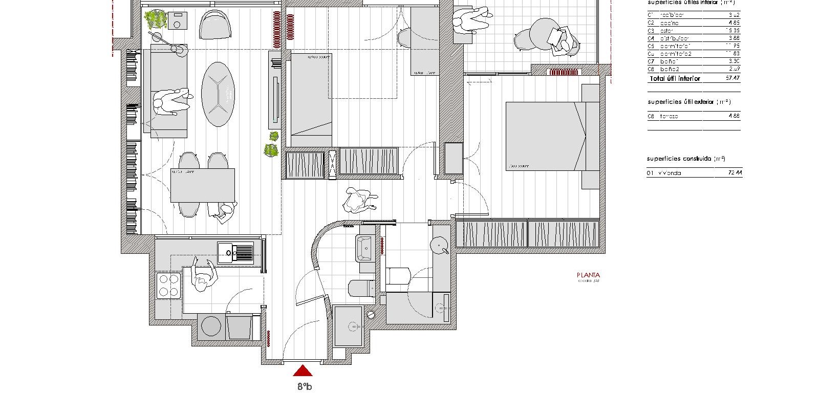
Reforma integral de una vivienda en barrio de Salamanca de Madrid. El estado previo de la vivienda contaba con gran terraza longitudinal, parte de cual se incorporó para conseguir una distribución mas diáfana y dormitorios mayores. Se incorporó un nuevo aseo, y a la pequeña cocina existente, se le dió mas superficie y se la dotó de una gran ventana que permitiese la entrada de luz natural a través del estar.

Año: 2017

Situación:Madrid

Estado:Construido

Infografías:Marcos Ortega