Espacio Acorde

Ampliación de vivienda en Madrid

Visión arquitectónica de ampliación de vivienda en Madrid
Transformación de vivienda tradicional mediante ampliación
Uso de materiales nobles en proyecto de ampliación residencial
Diseño de terraza y zona exterior en ampliación de vivienda
Ampliación de salón con grandes ventanales y luz natural
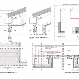
Detalle de fachada moderna en ampliación de casa en Madrid
Integración de nuevos espacios en vivienda unifamiliar Madrid
Arquitectura contemporánea de ampliación en el centro de Madrid
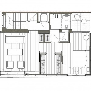
Optimización de espacios residenciales en ampliación de vivienda
Diseño de interiores para ampliación de casas en Madrid
Proyecto arquitectónico de reforma y ampliación integral en Madrid
Ampliación de vivienda unifamiliar en Madrid con diseño moderno
Visión arquitectónica de ampliación de vivienda en Madrid Transformación de vivienda tradicional mediante ampliación Uso de materiales nobles en proyecto de ampliación residencial Diseño de terraza y zona exterior en ampliación de vivienda Ampliación de salón con grandes ventanales y luz natural Detalle de fachada moderna en ampliación de casa en Madrid Integración de nuevos espacios en vivienda unifamiliar Madrid Arquitectura contemporánea de ampliación en el centro de Madrid Optimización de espacios residenciales en ampliación de vivienda Diseño de interiores para ampliación de casas en Madrid Proyecto arquitectónico de reforma y ampliación integral en Madrid Ampliación de vivienda unifamiliar en Madrid con diseño moderno
Ampliación de vivienda adosada en Madrid. La vivienda tenía en su ultima planta una gran terraza de 50 m2 que se quería colonizar como una zona independiente para el uso de los hijos de la familia. Se realizó una cubierta ligera pero permitiera un aislamiento adecuada, a la vez que buscó el mínimo impacto volumétrico hacía la calle.

Año: 2011

Situación:Madrid

Estado:Construido

Infografías:espacio acorde