Espacio Acorde

Anteproyecto de edificio de viviendas flexibles y coworking

Espacio de coworking interior en edificio de viviendas, con mobiliario ergonómico, luz natural y zonas colaborativas
Vista nocturna del edificio, destacando la iluminación arquitectónica que realza su volumen y presencia urbana.
Render exterior de edificio de viviendas flexibles con espacios de coworking, mostrando fachada moderna y zonas verdes integradas.
Render de un estudio o apartamento tipo loft dentro del edificio, mostrando un diseño abierto y moderno ideal para profesionales.
Detalle de mobiliario transformable dentro de una vivienda flexible, optimizando el espacio para diferentes usos.
Esquema conceptual del anteproyecto, ilustrando la idea de adaptabilidad y crecimiento futuro del edificio.
Terraza ajardinada en la azotea del edificio, ofreciendo un espacio de esparcimiento y vistas panorámicas.
Área de fitness o gimnasio en el edificio, como parte de los servicios compartidos para residentes y usuarios de coworking.
Sección transversal del edificio, mostrando la distribución vertical de viviendas flexibles y espacios de coworking.
Espacio de reunión o sala de conferencias en el área de coworking, equipado con tecnología para videollamadas y presentaciones.
Cocina compartida o área de comedor en el espacio de coliving, diseñada para la interacción y el uso flexible.
Infografía mostrando el flujo de energía y sistemas de climatización eficientes del edificio de viviendas y coworking.
Render de lobby o recepción del edificio, con diseño acogedor y funcional que integra áreas de espera y acceso al coworking.
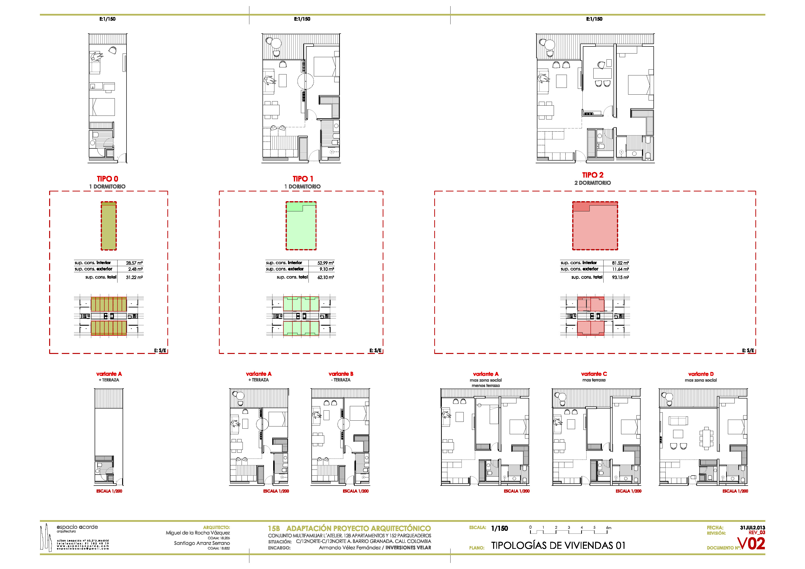
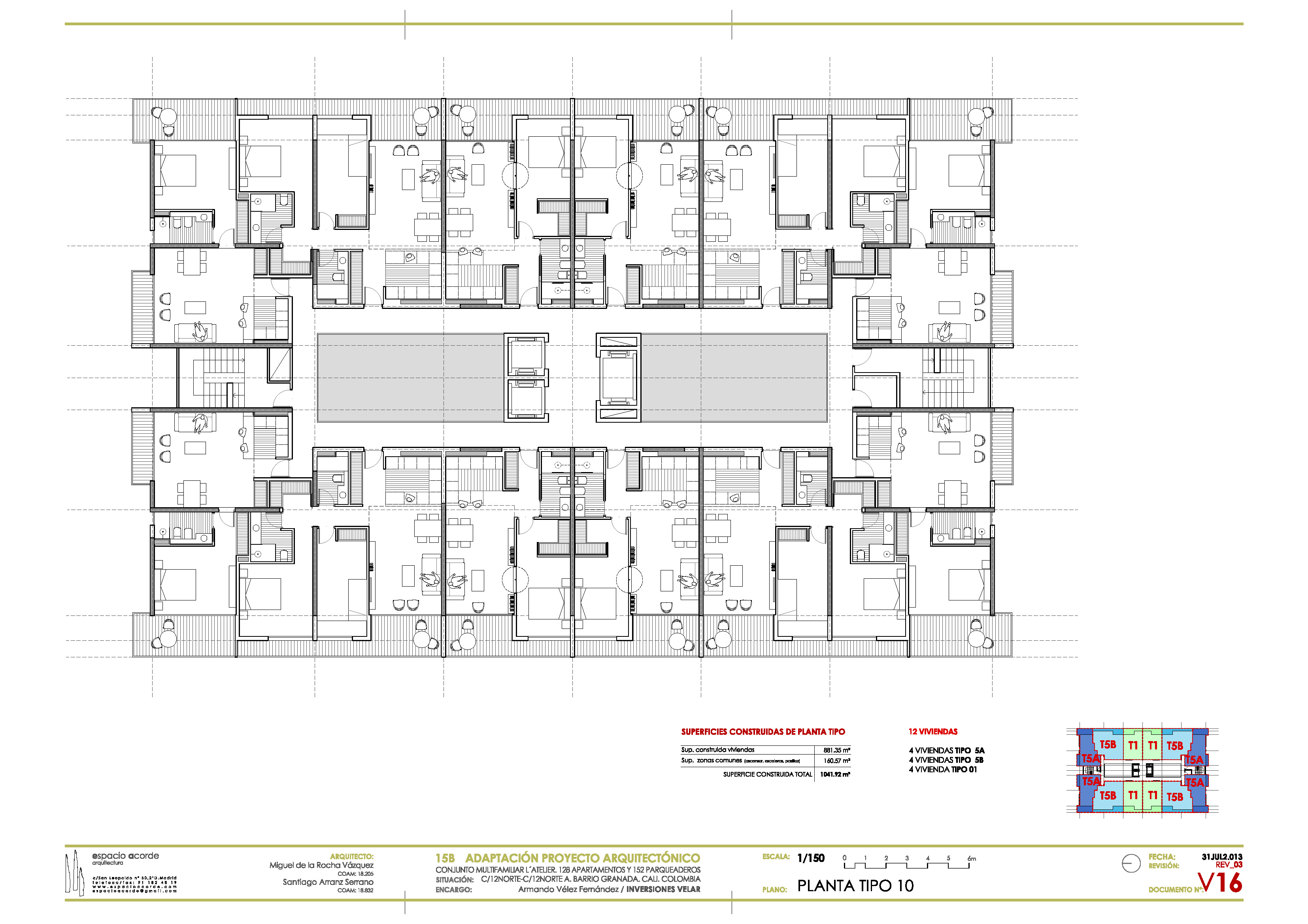
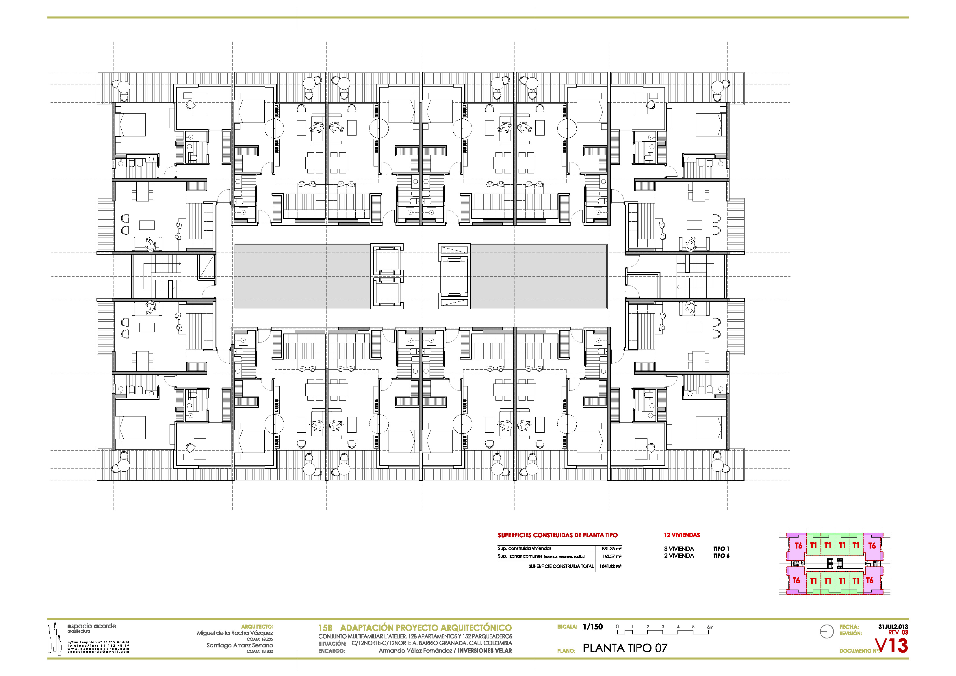
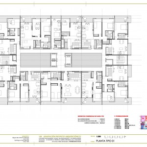
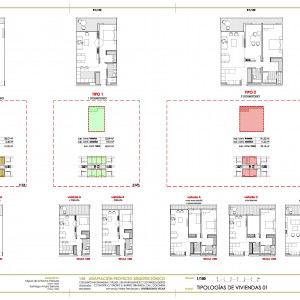
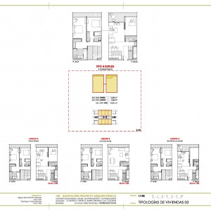
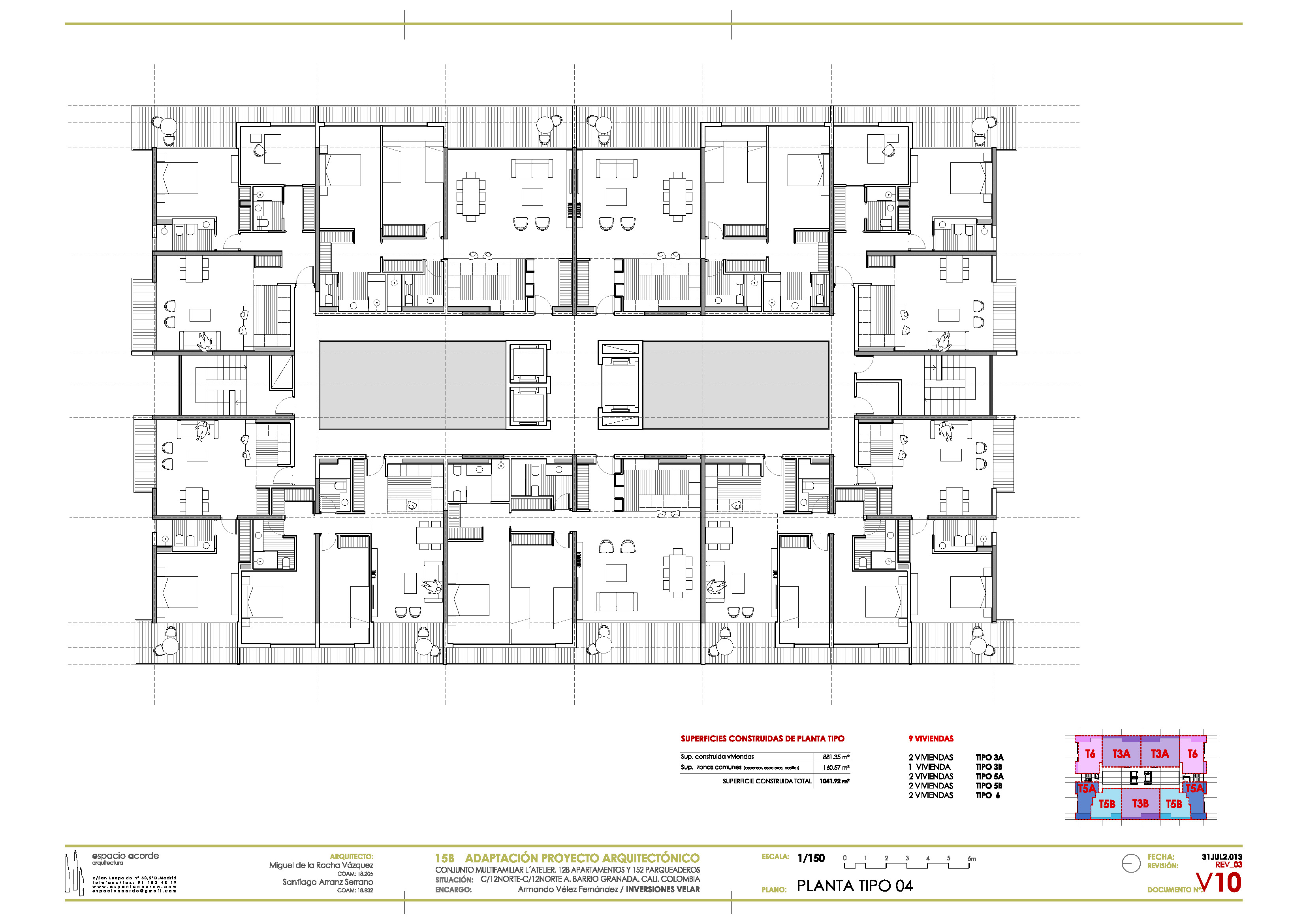
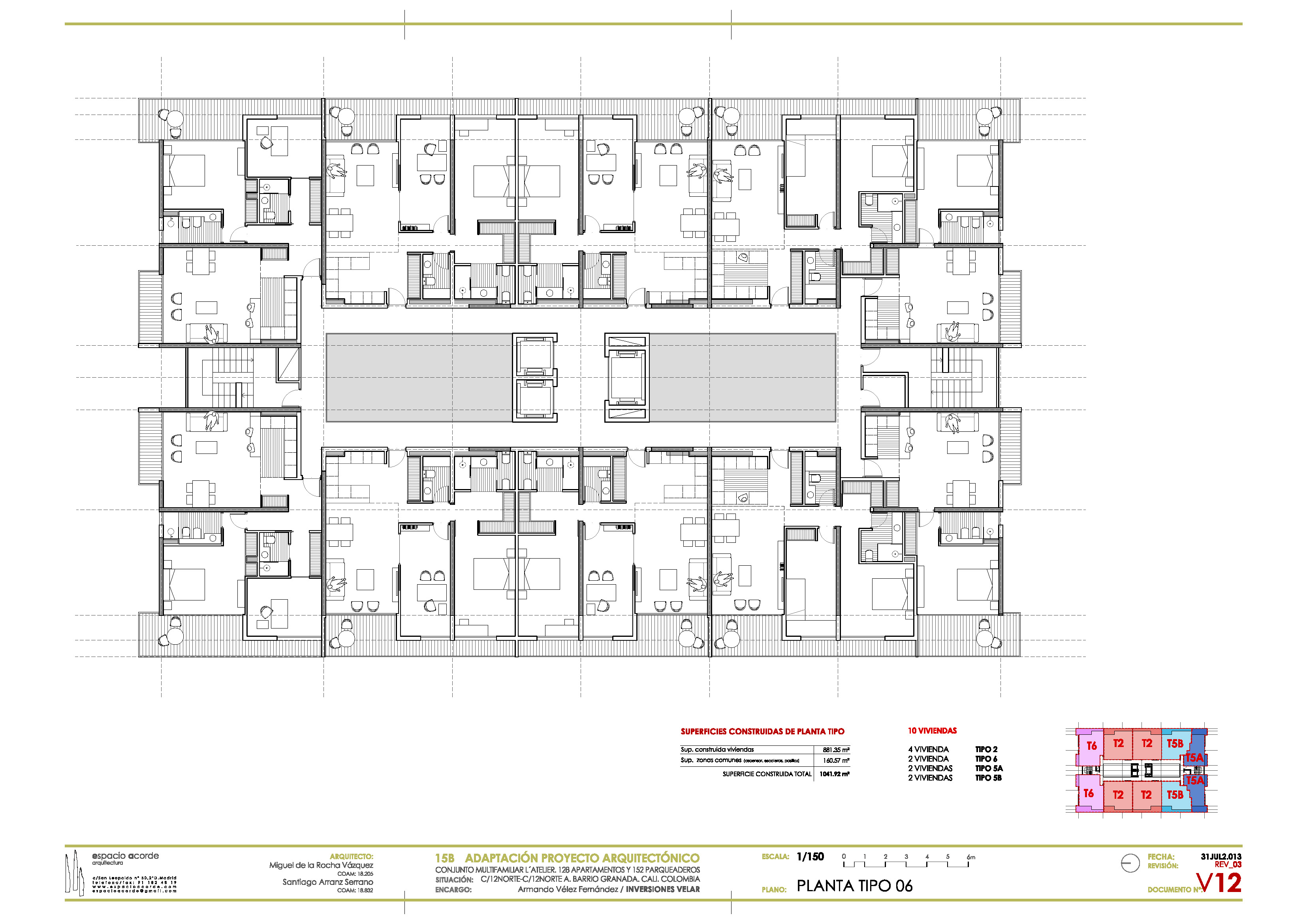
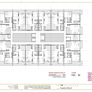
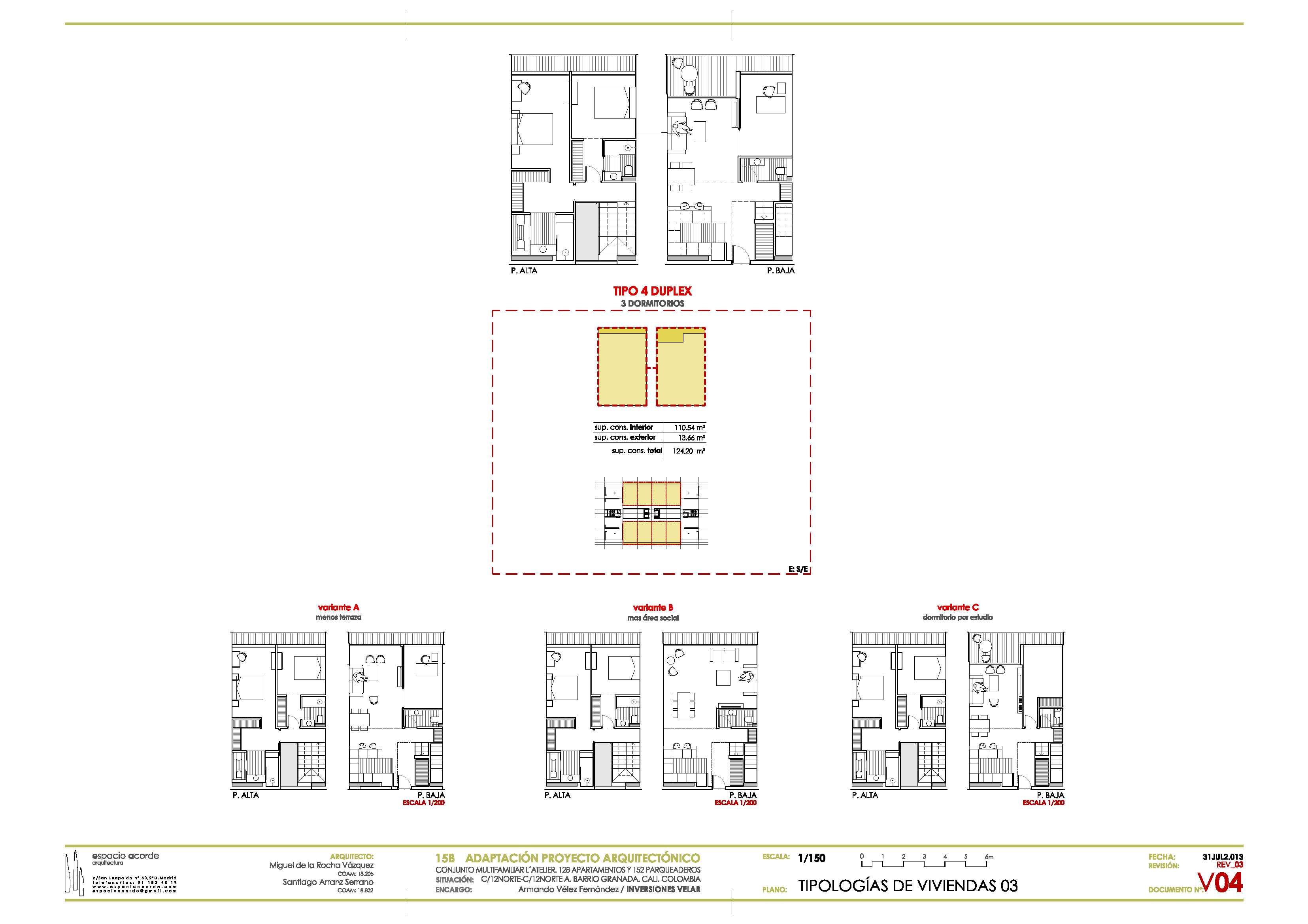
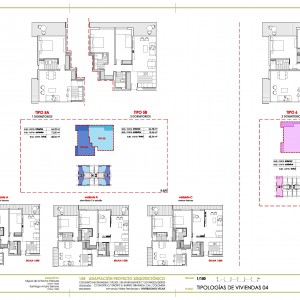
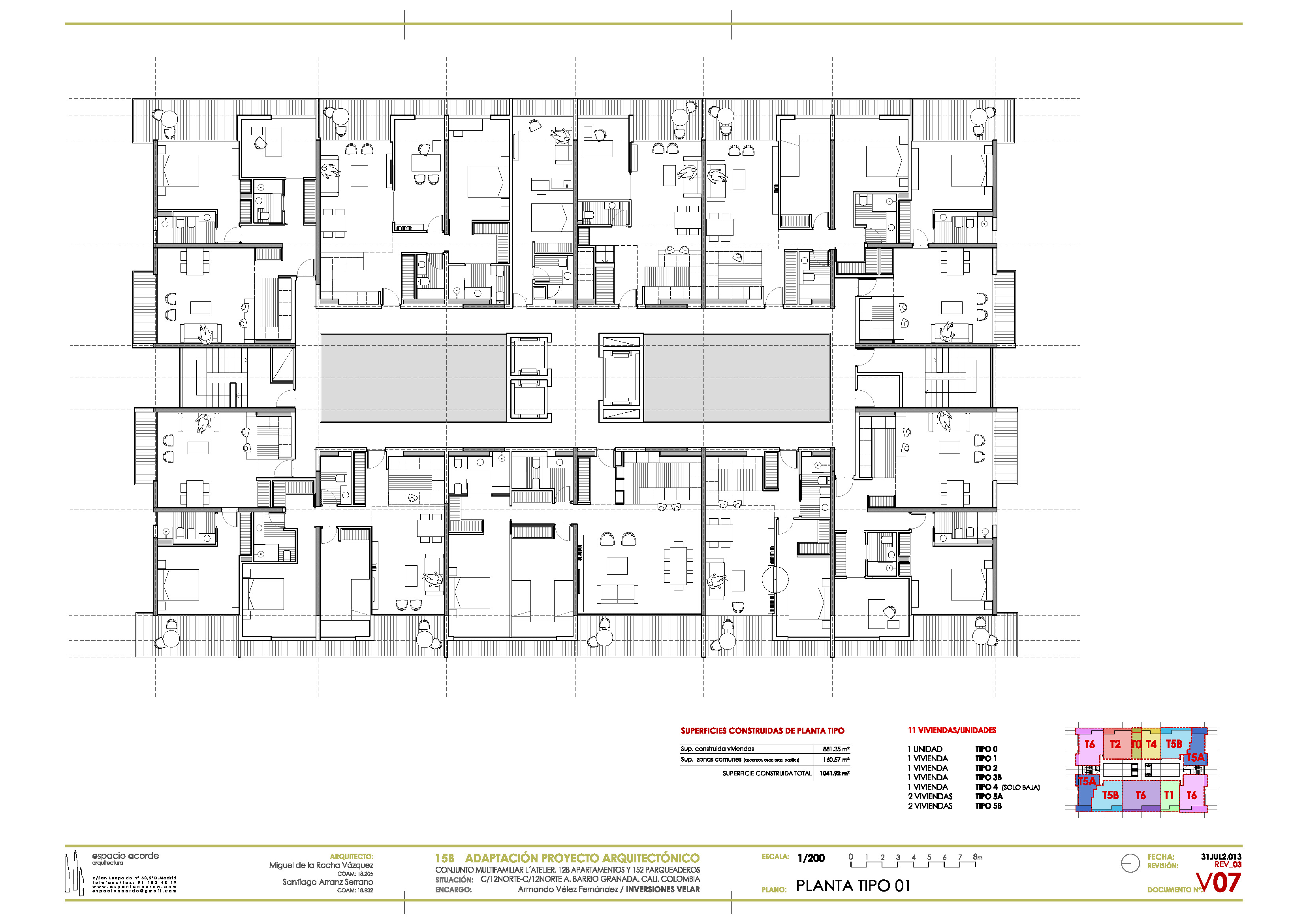
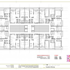
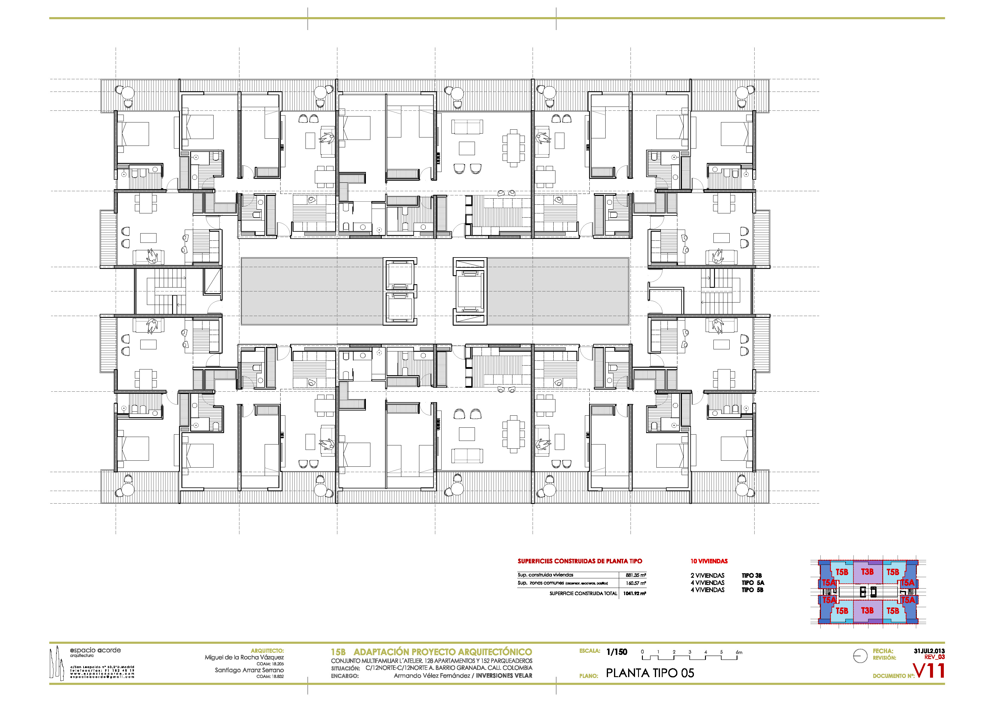
Planta tipo de vivienda flexible, ilustrando la modularidad y las diferentes configuraciones espaciales posibles para residentes.
Detalle de fachada ventilada y materiales sostenibles utilizados en el anteproyecto de edificio híbrido.
Zona común de coliving, fomentando la interacción social y el sentido de comunidad entre los residentes.
Vista de balcón o terraza privada en vivienda flexible, con diseño biofílico y vistas urbanas o naturales.
Espacio de coworking interior en edificio de viviendas, con mobiliario ergonómico, luz natural y zonas colaborativas Vista nocturna del edificio, destacando la iluminación arquitectónica que realza su volumen y presencia urbana. Render exterior de edificio de viviendas flexibles con espacios de coworking, mostrando fachada moderna y zonas verdes integradas. Render de un estudio o apartamento tipo loft dentro del edificio, mostrando un diseño abierto y moderno ideal para profesionales. Detalle de mobiliario transformable dentro de una vivienda flexible, optimizando el espacio para diferentes usos. Esquema conceptual del anteproyecto, ilustrando la idea de adaptabilidad y crecimiento futuro del edificio. Terraza ajardinada en la azotea del edificio, ofreciendo un espacio de esparcimiento y vistas panorámicas. Área de fitness o gimnasio en el edificio, como parte de los servicios compartidos para residentes y usuarios de coworking. Sección transversal del edificio, mostrando la distribución vertical de viviendas flexibles y espacios de coworking. Espacio de reunión o sala de conferencias en el área de coworking, equipado con tecnología para videollamadas y presentaciones. Cocina compartida o área de comedor en el espacio de coliving, diseñada para la interacción y el uso flexible. Infografía mostrando el flujo de energía y sistemas de climatización eficientes del edificio de viviendas y coworking. Render de lobby o recepción del edificio, con diseño acogedor y funcional que integra áreas de espera y acceso al coworking. Planta tipo de vivienda flexible, ilustrando la modularidad y las diferentes configuraciones espaciales posibles para residentes. Detalle de fachada ventilada y materiales sostenibles utilizados en el anteproyecto de edificio híbrido. Zona común de coliving, fomentando la interacción social y el sentido de comunidad entre los residentes. Vista de balcón o terraza privada en vivienda flexible, con diseño biofílico y vistas urbanas o naturales.
Sobre un proyecto ya algo avanzado, y con la estructura ya desarrollada, la propiedad nos solicitó que desarrolláramos un sistemas de tipologías de viviendas flexibles para su posible adaptación previa a la venta de las mismas. Partiendo de un soporte “rígido”, desarrollamos una serie de tipos de viviendas que se pudieran adaptar a la demanda de los futuros residentes, tanto en superficie como en programa interior, resultando una gran variedad de vivienda para una misma estructura. Esta misma filosofía la aplicamos a un uso distinto, como es el de oficina o coworkíng, dotando al edificio en sus plantas inferiores para este uso, con la flexibilidad necesaria para que se adaptara a sus futuros moradores.

Año: 2014

Situación:Cali, Colombia

Estado:anteproyecto

Infografías:Daniel Ballesteros Moreno