Espacio Acorde

Sala de teatro Azarte en Chueca

Arquitectura cultural y diseño de vanguardia en Madrid
Espacio de formación teatral renovado en el barrio de Chueca
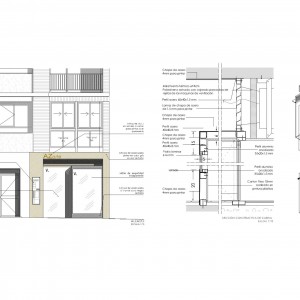
Detalle de acabados modernos en renovación de sala escénica
Acústica y diseño de interiores en reforma de teatro Chueca
Optimización de espacios en sala de teatro alternativa Azarte
Diseño de iluminación técnica para teatro renovado en Madrid
Rehabilitación de locales culturales en el barrio de Chueca
Arquitectura de interiores para salas de artes escénicas
Modernización de infraestructura teatral en el centro de Madrid
Proyecto de renovación de espacios escénicos en Chueca
Diseño de interiores moderno para salas de teatro en Madrid
Reforma integral de la Sala de Teatro Azarte en Chueca Madrid
Arquitectura cultural y diseño de vanguardia en Madrid Espacio de formación teatral renovado en el barrio de Chueca Detalle de acabados modernos en renovación de sala escénica Acústica y diseño de interiores en reforma de teatro Chueca Optimización de espacios en sala de teatro alternativa Azarte Diseño de iluminación técnica para teatro renovado en Madrid Rehabilitación de locales culturales en el barrio de Chueca Arquitectura de interiores para salas de artes escénicas Modernización de infraestructura teatral en el centro de Madrid Proyecto de renovación de espacios escénicos en Chueca Diseño de interiores moderno para salas de teatro en Madrid Reforma integral de la Sala de Teatro Azarte en Chueca Madrid
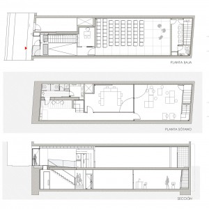
Transformación de un local comercial largo y estrecho, en una escuela y sala de teatro alternativos. El programa de la escuela se desarrolla a modo de anillo vertical a través de las dos plantas del local, y as dos comunicaciones verticales en sus extremos. En la planta baja se sitúa sala del teatro, con una capacidad de 58 espectadores, y en la planta sótano las dos aulas polivalentes. Estas últimas, están divididas por una pared móvil que permite a su vez convertirla en otra gran sala de representaciones para poder realizar dobles representaciones con público arriba y abajo.

Año: 2009

Situación:Madrid

Estado:Construido

Infografías:espacio acorde